Homes
Bobby Jo
Avalyn
Lulamae
Liza Jane
Anna Fae
Emma Jean
Lulabelle
Arabella
Rocking Chair
Magnolia
All Homes
Decor
Features
FAQs
Clayton Built
Contact
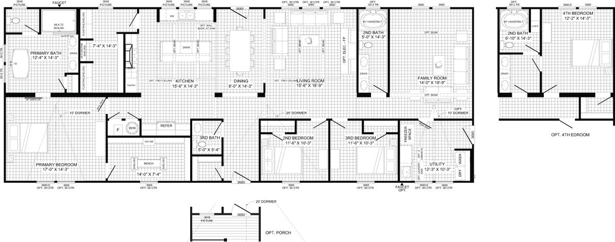
The Rocking Chair
32x80
•
3 Bedroom
•
2 Bathroom
•
2,400 sq ft
Gallery
Previous
Next
3D Tour
< PREV
ALL MODELS
NEXT >
Interested in this floor plan?
Find a Retailer
What is Your True
Farm House Personality?
Take the Quiz